技术服务
选择阿赛洛,意味着您为自己项目选择了量身定制的全套服务。我们的参与不仅仅局限于产品的交付,我们还为项目提供完整的EPC项目管理,我们还会成为整个项目生命周期的顾问和项目监督,项目文控以及项目管理等附加服务。
Choosing for ArcelorMittal, means choosing a complete package of products and services, tailored to your project. Our involvement doesn’t stop at delivery. We offer additional services such as EPC project management, consultancy supervision for the entire project lifecycle, and document control management.
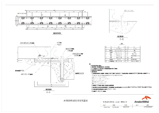
请向我司提供完整的项目信息,我司会依据贵司需求为客户制定完整的交付方案,包含轨道及轨道压件的设计选型,整体方案设计图纸,具体施工方案设计图纸等等。
Please provide us with the complete project information, and we will make a complete delivery scheme for our customers according to your requirements, including the selection of rail and rail accessories parts, overall scheme design drawings, specific construction scheme design drawings and professional installation schemes etc.

更多信息,请查阅以下信息:
For more information, pls check below:
更多W系列轨道压件选型 ,请联系我司业务人员。
For more W series rail clips selection, pls contact us.
更多B系列轨道压件选型 ,请联系我司业务人员。
For more B series rail clips selection, pls contact us.

设计研发Designing and developing

A150钢轨-W220  Rail Designing A150-W220

W-焊接式压板设计选型-W-welded rail clips design and selection

B-螺栓式压板设计选型-B-bolted rail clips design and selection

本站使用百度智能门户搭建 管理登录
沪ICP备2022027112号-1